|
----------------------------------------------------------------------------------------------- |
|
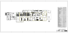
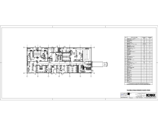
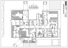
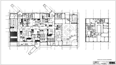
Húsfeldolgozó és csomagoló – 2022.
Romániába készült ez a zsírolvasztásra, kolbászérlelésre és termékszeletelésre alkalmas üzem, egy meglévő hűtőház átalakításával. Meglévő külső üzemben előállított kolbászok és szalámik érlelésére, zsírolvasztásra és az egyéb húsipari termékek szeletelésére, majd egyedi és kartonos csomagolására alkalmas ez az üzem.
|
|
 |
|
---------------------------------------------------------------------------------------------- |
|
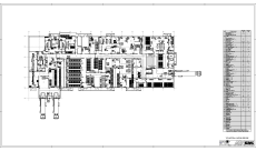
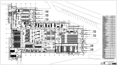
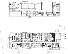
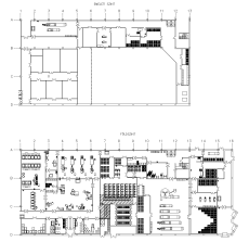
Kolbászérlelő és csomagoló – 2021.
Romániába készült ennek a kolbászérlelő és késztermék szeletelő, illetve csomagoló üzemnek a terve. A tervezett üzem a már évek óta működő húsfeldolgozó mellé kerül megépítésre. Azt ott előállított kolbászok és szalámik érlelésére és az egyéb húsipari termékek szeletelésére, majd egyedi és kartonos csomagolására alkalmas ez az üzem.
|
|
 |
|
---------------------------------------------------------------------------------------------- |
|
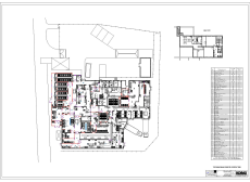
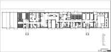
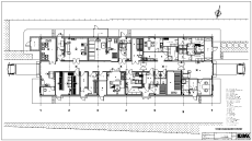
Húsboltból húsfeldolgozó – 2021.
Ez a kiskapacitású üzem egy korábban húsboltként funkcionáló, kétszintes épületből lett kialakítva.
Sous vide termékek, sütnivaló kolbászok, hamburgerpogácsák és marinírozott termékek előállítását lehet az üzemben megvalósítani.
Egyedi vákuumos csomagolás mellett ládás kiszállításra van lehetőség.
|
|
 |
|
---------------------------------------------------------------------------------------------- |
|
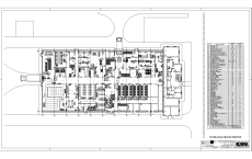
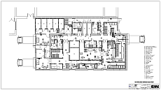
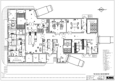
Húsfeldolgozó bővítés – 2021.
18,4 tonna/hét kapacitású húsfeldolgozó üzemi bővítés egy meglévő kolbászgyártó üzem folytatásaként.
Hűtött és fagyasztott darabolt hús alapanyagokból darabolt-pácolt termékeket, hurkaféléket és olvasztott zsírt állítanak elő ebben a bővítésben.
Különböző típusú egyedi csomagolásra van lehetőség, ládás kiszállítás mellett.
|
|
 |
|
---------------------------------------------------------------------------------------------- |
|
Hűtőházból húsfeldolgozó – 2021.
3÷3,5 tonna/nap kapacitású húsfeldolgozó üzem.
Hűtött és fagyasztott darabolt hús alapanyagból lényegében teljes vertikumú húsipari termék előállítására alkalmas üzem.
A termékszeletelés mellett különböző típusú egyedi csomagolásra és kartonos gyűjtőcsomagolásra van lehetőség.
|
|
 |
|
---------------------------------------------------------------------------------------------- |
|
Húsfeldolgozó – 2021.
20 tonna/hét kapacitású húsfeldolgozó üzem.
Hűtött félsertés és marhanegyed darabolásból, valamint darabolt húsként beszállított alapanyagokból készítik a lényegében teljes vertikumú húsipari termékeket.
A termékszeletelés mellett különböző típusú egyedi csomagolásra és kartonos gyűjtőcsomagolásra van lehetőség.
|
|
 |
|
---------------------------------------------------------------------------------------------- |
|
Húsfeldolgozó – 2020.
10 tonna/nap kapacitású húsfeldolgozó üzem.
Fele-fele arányban hűtött és fagyasztott alapanyagokból (jellemzően darabolt húsokból) készítik a lényegében teljes vertikumú húsipari termékeket.
A termékszeletelés mellett különböző típusú egyedi csomagolásra és kartonos gyűjtőcsomagolásra van lehetőség.
|
|
 |
|
---------------------------------------------------------------------------------------------- |
|
Átalakítás húsfeldolgozónak – 2020.
Egy korábban jellemzően sertésvágóként működtetett üzem lett átalakítva húsfeldolgozó üzemmé.
A tervezett átalakítás után az üzem alkalmas lesz lényegében teljes vertikumú húsipari termék előállításra 3200 kg/nap feldolgozási kapacitással.
|
|
 |
|
---------------------------------------------------------------------------------------------- |
|
Húsfeldolgozó – 2019.
80 marhanegyed/hét darabolása, a darabolt hús egy részének száraz érlelése, majd csomagolása.
Különböző
húsipari termékek előállítása, nagyobb mennyiségben érlelt szalámi készítése.
Termékszeletelővel és egyedi, illetve kartonos csomagolással.
|
|
 |
|
---------------------------------------------------------------------------------------------- |
|
Húsfeldolgozó – 2018.
1500 kg/nap daraboltan beszállított alapanyag (frisshús és zsiradékok) feldolgozására.
A zsírolvasztás, mint fő tevékenység mellett, kisebb mennyiségben pácolt termékeket, kolbászféléket, illetve szeletelt és kockázott húsokat állítanak elő.
Hűtött és fagyasztott (egyedileg csomagolt) kiszerelésben.
|
|
 |
|
---------------------------------------------------------------------------------------------- |
|
Húsfeldolgozó – 2018.
24 marhanegyed és 20 báránytest/nap feldolgozása.
Darabolt hús előállítás mellett előkészített húsok (grillkolbász és hamburgerpogácsa), sous vide húsok, illetve kisebb mennyiségben érlelt kolbász előállításra.
Hűtött és fagyasztott (egyedileg csomagolt) termékek
készítésére.
|
|
 |
|
---------------------------------------------------------------------------------------------- |
|
Húsfeldolgozó – 2015.
20,2 tonna/nap hentesáru előállítására alkalmas üzem.
Kb. fele-fele arányban darabolt frisshús és fagyasztott alapanyagok felhasználásával.
Korszerű szeletető és csomagoló üzemrésszel. |
|
 |
| ----------------------------------------------------------------------------------------------- |
|
Pimi-2000 Kft. – Tata – 2014.
3...5 tonna/nap hentesáru előállítására alkalmas üzem, ahol kisebb mennyiségben darabolt hús előállításra is lehetőség lesz. Meglévő (hasonló funkciókat is tartalmazó) üzem átalakítása és bővítése. MTT-BAU Bt. generáltervezéséhez altervezői szolgáltatásként készített technológiai terv. |
|
 |
|
----------------------------------------------------------------------------------------------- |
|
Hajdú Hús 2000 Kft. – Debrecen – 2014.
2...3 tonna/nap hentesáru előállítására alkalmas üzem, ami az előzetes elképzelések szerint tanüzemként is funkcionál majd. |
|
 |
| ----------------------------------------------------------------------------------------------- |
|
Szalámishop Kft. – Szeged – 2013.
2,7 tonna/hét hentesáru előállítására alkalmas üzem, egy meglévő iparterületi épületrészben kialakítva.
Speciális érlelésű szárított töltelékes készítmények gyártására is.
|
|
 |
| ----------------------------------------------------------------------------------------------- |
|
TEPI-MIX Kft. – Kalocsa – 2006.
1,5 tonna/nap alapanyga előkészítése során kitermelt étkezési szalonna hűtve kerül értékesítésre. A maradék zsiradékot (kb. 750 kg/nap) kiolvasztva, csomagolt zsírként és tepertőként értékesítik. |
|
 |
| ----------------------------------------------------------------------------------------------- |
|
Her-Csi-Hús Kft. – Hernád – 2005.
12 tonna/nap késztermék és 4 tonna/nap marinírozott csirkemell előállítására alkalmas húsfeldolgozó üzemrész.
A meglévő üzemrészek felhasználásával kialakított korszerű feldolgozó üzemrész, önálló marinírozó egységgel.
Az EU előírásoknak megfelelő kivitelben.
www.hercsihus.hu
|
|
 |
| ----------------------------------------------------------------------------------------------- |
|
Pásztor Hús Kft. – Eger – 2004.
20 tonna/nap kapacitású húsfeldolgozó üzem.
A saját (szomszédos) vágóhídon előállított félsertésből és marhanegyedekből darabolt és fagyasztott alapanyagból lényegében a teljes húsipari termékskála előállítására.
Kétszintes üzemépületben a szükséges gyártó és csomagoló rendszerekkel, az EU előírásoknak megfelelő kivitelben.
(Sajnos egyenlőre félúton leállt a kivitelezés.) |
|
 |
| ----------------------------------------------------------------------------------------------- |
|
Juhász-Hús Kft. – Bicske – 2003.
8 tonna/hét kapacitású szárazáru előállító üzem.
Hűtött, darabolt és fagyasztott alapanyagból előkészítés után darabolt-füstölt termékeket és parasztkolbászt állítanak elő.
A meglévő kisüzemi vágó-feldolgozó üzemet alakítottuk át teljes egészében feldolgozó üzemmé, hogy a szigorodó előírások
mellet is biztosíthatók legyenek az EU előírások is. |
|
 |
| ----------------------------------------------------------------------------------------------- |
|
Mercurius Bt. – Csurgó – 2003.
2 tonna/nap kapacitású zsírolvasztó és füstöltszalonna előállító üzem.
Hűtött szalonna alapanyagból előkészítés után olvasztott zsírt, tepertőt és füstölt szalonnát állítanak elő. |
|
 |
| ----------------------------------------------------------------------------------------------- |
|
Bánfai és Társa Kft. – Pellérd – 2002.
15...20 tonna/hét kapacitású tepertőkrém előállító üzem.
Hűtött szalonna alapanyagból zsírolvasz-tással előállított tepertőből
készítenek tepertőkrémet. A kiolvasztott zsír csomagolás után (ahogy a tepertőkrém és a tepertő is) kerül kiszállításra. |
|
 |
| ----------------------------------------------------------------------------------------------- |
|
Aero-Meat Kft. - Kiskunfélegyháza - 2002.
10 tonna/hét kapacitású szalonnafeldolgo-zó üzem.
A zsírolvasztás mellett különleges pácolású göngyölt szalonna, pörc és tepertő előállítására.
Hűtött alapanyag formázás utáni felhasználásával. |
|
 |
| ----------------------------------------------------------------------------------------------- |
|
Imki-Food Kft. – Biharnagybajom – 2001.
2 tonna/nap kapacitású húsfeldolgozó üzem, a meglévő vágóhíd mellé építve és azzal összekapcsolva.
A feldolgozáshoz szükséges darabolóval. A szokásos termékféleségek előállítására. Zsírolvasztó lehetőséggel.
EU-s feltételeknek megfelelő kialakítással.
www.imki-food
|
|
 |
| ----------------------------------------------------------------------------------------------- |
|
Nagy Károly – Enying – 1998.
5 tonna/nap kapacitású húsfeldolgozó üzem, integrált húsbolttal. Hűtött alapanyag (félsertés) üzemi darabolásával és fagyasztott alapanyag felhasználásával készülnek a (kizárólag hőkezelt) termékek.
Sajnos ez az üzem nem épült meg, de olyan sok munkát fektetünk a tervezésébe (Patócs Péter építésszel), hogy nem volt szívem kihagyni a listából. |
|
 |
| ----------------------------------------------------------------------------------------------- |
|
Zala-Hús – Zalaegerszeg – 1998.
60 tonna/nap kapacitású húsfeldolgozó üzemrész.
A Zala-Hús
területén külön épületben kialakított, kétszintes húsfeldolgozó kétszintes, önálló üzemrész.
A meglévő csontozóból
tervezett alapanyag ellátással. Teljes körű bemérő rendszerrel, gépteremmel és pácolóval, a kapcsolódó hőkezelő- füstölő kapacitással. Késztermék hűtőkkel, komplett csomagolóvonalakkal és komissiózóval.
Az ajánlat 3 változatban is elkészült (a képen a harmadik változat látható), sajnos az épület szerkezet megépítése után a beruházás megbicsaklott. |
|
 |
| ----------------------------------------------------------------------------------------------- |
|
Öcsi-Hús Rt. – Mátészalka – 1998.
8...10 tonna/nap kapacitású húsfeldolgozó üzem. Hűtött alapanyag (félsertés és marhanegyed) üzemi darabolásával és fagyasztott alapanyag felhasználásával készülnek a termékek.
Eredetileg egy kisméretű feldolgozó működött itt, amit a szükséges átalakításokkal és bővítésekkel sikerült már ekkor EU-s üzemmé átalakítani.
www.ocsihus.hu
|
|
 |
| ----------------------------------------------------------------------------------------------- |